យើង នឹង បង្ហាញ ការ ធ្វើការ វិធីសាស្ត្រ ប្រតិបត្តិការ សុវត្ថិភាព និង ប៉ារ៉ាម៉ែត្រ បច្ចេកទេស របស់ HXGN-1
1. Scope of use

HXGN□- ១២ (F. ) ប្រភេទ box- ថេរ AC មេរៀក ប្ដូរ (បាន ហៅ ថា "ប៊ូតុង បណ្ដាញ") គឺ ជា ប្រភេទ ប្ដូរ ថ្មី បាន រចនា សម្រាប់ ការ ធ្វើ ឡើង វិញ វា ក៏ ត្រូវ បាន ប្រើ ជា ការ ផ្ទុក បច្ចុប្បន្ន, រង្វង់ ខ្លី និង ការ បិទ បច្ចុប្បន្ន នៅ ក្នុង ប្រព័ន្ធ ការ ផ្នែក ថាមពល ។ និង សមរម្យ សម្រាប់ AC 3-10 KV, 50 Hz ។ វា ត្រូវ បាន ប្រើ ទូទៅ ក្នុង គម្រោង ក្រឡាចត្រង្គ ប្រទេស និង ការ ធ្វើ ឡើង វិញ ។ ។. ជា ឯកតា ការ ផ្ដល់ ថាមពល បណ្ដាញ និង ឧបករណ៍ ស្ថានីយ ដែល លេង តួនាទី នៃ ការ ចែកចាយ ថាមពល, ត្រួតពិនិត្យ និង ការពារ ឧបករណ៍ អនុញ្ញាត និង អាច ត្រូវ បាន ដំឡើង នៅ ក្នុង ស្ថានភាព រង ដែល បាន ដំឡើង មុន ។ ប៊ូតុង បណ្ដាញ រៀន នេះ ត្រូវ បាន ដាក់ ជាមួយ ការ ប្ដូរ ផ្ទុក វ៉ូម និង វិធីសាស្ត្រ ប្រតិបត្តិការ រង ដែល អាច ត្រូវ បាន ប្រតិបត្តិ ដោយ ដៃ ឬ ជា អចិន្ត្រៃយ៍ ។ ប្ដូរ បណ្ដាញ និង ប្ដូរ បំផុត ត្រូវ បាន ផ្គុំ ជាមួយ ប្រតិបត្តិការ ដៃ ។ និង សំណុំ បញ្ចូល មិន មាន គ្រោះថ្នាក់ និង ការ កោត ខ្លាំង ហើយ វា មាន មុខងារ "ការពារ ៥" ដែល ទុកចិត្ត ។ បណ្ដាញ រៀប នេះ ទាក់ទង នឹង ការ កំណត់ ទាក់ទង របស់ GB3960 "3~ 35KV AC Metal Switchgear" និង IEC60420 " ស្តង់ដារ ផ្ទុក ប្ដូរ កណ្ដុរ
2. Model and its meaning
HXGN□-12(F.R)
H: Ring network
X: Box type
G: Stationary
N: Indoor
□: Design serial number
12: កម្រិត ពិត
(F.R): Load switch-fuse combination
3. Normal conditions of use
1. Ambient air temperature: -15. 0 40℃;
2. Altitude: 1000m and below;
លក្ខខណ្ឌ ត្រឹមត្រូវ ៖ មធ្យោបាយ មធ្យោបាយ ទឹក មធ្យម គឺ មិន ច្រើន ជាង 2.2 kPa មធ្យម ជា ខែ មិន មែន ជា ៩០ ។ និង ការ បង្ខំ ទឹក មធ្យម មាន ខែ មិន ច្រើន ជាង L 8 kPa ឡើយ ។
4. Earthquake intensity: no more than 8 degrees;
5. There are no obvious pollutants such as corrosive or flammable gases.
ចំណាំ ៖ ប្រសិនបើ លក្ខខណ្ឌ ធម្មតា របស់ ប្រើ ខាង លើ ត្រូវ បាន បណ្ដាល ឲ្យ អ្នក ប្រើ អាច ចងចាំ ជាមួយ ក្រុមហ៊ុន ។
4. Main technical parameters
serial number | ឈ្មោះ: | unit | data | |
1 | កម្រិត ពិត | KV | 12 | |
2 | តម្លៃ បច្ចុប្បន្ន | ផ្ទុក ការ ប្ដូរComment | A | 630 |
Combined ប្ដូរ ទេ | 125 | |||
3 | Rated short-circuit breaking current | KA | 31.5 | |
4 | Rated active load breaking current | A | 630 | |
5 | បាន វាយតម្លៃ សម្រាប់ កំណត់ ពេល ខ្លី ផ្អាក បច្ចុប្បន្ន | KA | 20 | |
6 | ពន្លឺ ដែល បាន វាយតម្លៃ ផ្អាក បច្ចុប្បន្ន | KA | 50 | |
7 | The rated power frequency is rated to withstand voltage interphase, ground/break | KV | 42/48 | |
8 | Lightning shock is resistant to voltage phase, ground/break | KV | 75/85 | |
9 | Mechanical life | ពេលវេលា | 10000 | |
10 | Rated Handover Current (Combined Appliances) | A | 3150 | |
11 | How it works | Manual or electric | ||
12 | កម្រិត ការពារ | IP3X | ||
5. Structural characteristics (as shown in Figure 2 and Figure 3)
1. Structural performance characteristics
1. 1.
ប៊ូតុង បណ្ដាញ Ring L1.2 ត្រូវ បាន ផ្លាស់ប្ដូរ FZN21-12D ឬ កម្មវិធី អ៊ីនធឺណិត FZRN21-12D លីនេអ៊ែរ ដែល មាន ប្ដូរ បំផុត, ប្ដូរ ផ្ទុក វ៉ូស និង ប្ដូរ បណ្ដាញ និង ប្ដូរ ផ្ដាច់ និង ប្ដូរ បណ្ដាញ មាន ការ សម្រាក ព័ត៌មាន ។
១ ៣ ប្ដូរ បំផុត, ប្ដូរ ផ្ទុក វ៉ូម, ប្ដូរ បណ្ដាញ និង ផ្នែក ខាងក្រៅ មាន ឧបករណ៍ ចង់ លេង និង ជម្រះ ដែល អាច ការពារ ភាព មិន ល្អ ឥត ប្រយោជន៍ និង ថែទាំ សុវត្ថិភាព ។
1.1.4 It can be operated manually and electrically.
១. ជួប ប្រទះ និង ច្រក របស់ ប៊ីបែល ដែល ធ្វើ ឲ្យ រង្វង់ L5 មាន គំរូ ។
1.1.6 កម្រិត កម្រិត អចិន្ត្រៃយ៍ និង គូស លុប ក្បៀស ជាមួយ គំនូរ ភ្លើង ។ នៅ ក្នុង ករណី សៀវភៅ ខ្លាំង ប៉ះ បញ្ឈប់ គំរូ រហ័ស ដើម្បី ធ្វើ ឲ្យ ការ បើក រហ័ស និង បំបែក រហ័ស ដែល អាច ការពារ ឧបករណ៍ អ៊ីស្រាអែល ដោយ បែបផែន ។
1.L 7 ring mesh cabinet adopts front operation, reliable wall installation.
2. "Five prevention" locking function
2. 1 ប្រតិបត្តិការ បញ្ជូន ថាមពល ៖ តែ នៅពេល ដែល ខ្សែស្រឡាយ ត្រូវ បាន បិទ និង ចាក់សោ ហើយ ប្ដូរ មូលដ្ឋាន ត្រូវ បាន ប្រតិបត្តិ ទៅ ទីតាំង " បើក" ប្ដូរ ផ្ទុក អាច ត្រូវ បាន ប្រតិបត្តិ ដើម្បី បិទ ទីតាំង ។
2.2.2 ប្រតិបត្តិការ ចេញ ថាមពល ៖ នៅពេល ដែល ការ ប្ដូរ ផ្ទុក នៅ ក្នុង ទីតាំង បំផុត ប្ដូរ បណ្ដាញ អាច ត្រូវ បាន បិទ និង នៅ ពេល ប្ដូរ កណ្ដាល នៅ ក្នុង ទីតាំង ដែល បាន បិទ ភាគ ថាស ត្រូវ បាន បញ្ចូល ទៅ ក្នុង កន្លែង ដើម្បី បើក ផ្នែក ខ្លួន ។
2.1 ។ ៣ ការ ផ្លាស់ប្ដូរ ទេ និង សម្រាំង បំបែក និង បៃ កណ្ដាល ត្រូវ បាន តភ្ជាប់ ទៅ ផ្សេង ទៀត ហើយ ទាក់ទង នឹង ខ្សែស្រឡាយ ។ និង ការ ភាគតិចតួច គ្នា ត្រូវ បាន ដោះស្រាយ ជាមួយ ប្រទេស ។
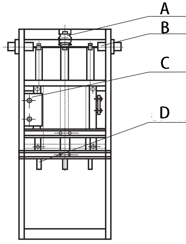
![]() | Figure 2 A: Insulator B: Through the wall casing C: Operating mechanism D: Grounding switch |
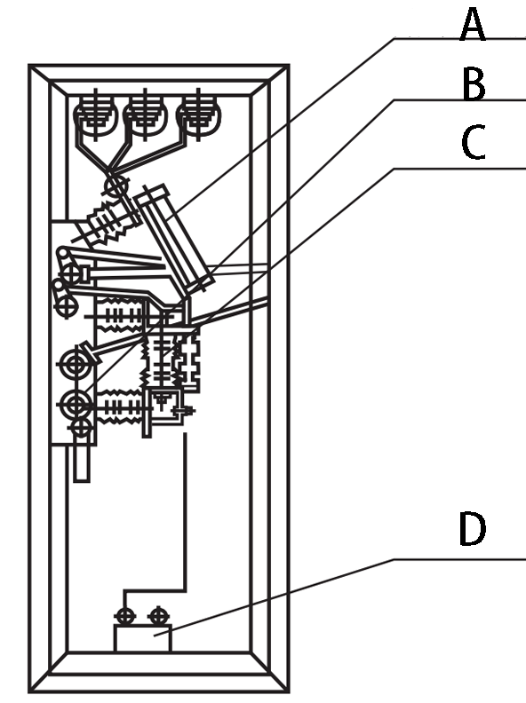
![]() | Figure 3 A: Fuse (isolation knife gate) B: Bullet control mechanism C: Load switch D: Current transformer |
6. The principle of ring network power supply
ការ ផ្ដល់ ថាមពល បណ្ដាញ រៀន < មាន ឯកតា មូលដ្ឋាន បី (មើល រូបតំណាង) បន្ទាត់ ចូល និង ក្រាហ្វិក ត្រូវ បាន ប្រើ ជា ឯកតា បណ្ដាញ ដែល អាច ត្រូវ បាន បំផ្លាញ តាម ពេល ពេល កំហុស ណាមួយ កើត ឡើង ។ និង ឯកតា ផ្សេងទៀត ផ្ដល់ ឲ្យ ការ ផ្ដល់ ថាមពល បន្ត នៃ គ្រាប់ ប្លង់ របស់ អ្នក ប្រើ ។ បណ្ដាញ រង្វិល បណ្ដាញ អ្នក ប្រើ លេង តំណត់ ក្នុង ការ ការពារ និង បំបែក កម្មវិធី ប្ដូរ ដែល មាន ភាព ត្រឹមត្រូវ សម្រាប់ ការ ថែទាំ និង ឡើង វិញ ។ ប៊ូតុង បណ្ដាញ រៀប អាច ត្រូវ បាន ផ្លាស់ប្ដូរ ដោយ ព្រិល ។ និង អាច មាន គ្រោងការណ៍ បន្សំ ផ្សេងៗ ពី ឯកតា មូលដ្ឋាន ដោយ យោង តាម ការ ទាមទារ អ្នក ប្រើ ។
![]() | ||
| បញ្ចូល Cable និង បន្ទាត់ ចេញ បន្ទាត់ អ្នក ប្រើ ប្ដូរ មែកធាង Cabinet Cable ធាតុ និង បន្ទាត់ ចេញ ពី បន្ទាត់ |
7. Main circuit scheme diagram
Scheme number | 01 | 02 | 03 | 04 | 05 | 06 |
Main circuit scheme diagram | ![]() | |||||
use | Cable in and out of the line | Cable in and out of the line | Cable in and out of the line | Cable in and out of the line | Cable in and out of the line | Cable in and out of the line |
Isolation/load/combination appliances | GN□-12D | GN□-12D | GN□-12D | FZN21-12D | FZN21-12D | FZN21-12D |
Fuse | RN3 | RN3 | ||||
Current transformer | LZZBJ9 | LZZBJ9 | ||||
arrester | HY5W | |||||
Scheme number | 07 | 08 | 09 | 10 | 11 | 12 |
Main circuit scheme diagram | ![]() | |||||
use | Cable in and out of the line | Cable in and out of the line | Cable in and out of the line | Cable in and out of the line | Cable in and out of the line | Cable in and out of the line |
Isolation/load/combination appliances | FZN21-12D | FZN21-12D | FZN21-12D | FZN21-12D | FZN21-12D | GN□-12D |
Fuse | RN2 | RN2 | RN2 | |||
Current transformer | LZZBJ9 | LZZBJ9 | LZZBJ9 | LZZBJ9 | ||
Voltage transformer | JDZ | JDZ | JDZ | |||
arrester | HY5W | HY5W | HY5W | |||
Scheme number | 13 | 14 | 15 | 16 | 17 | 18 |
Main circuit scheme diagram | ![]() | |||||
use | metering cable inbound and outbound lines | Cable in and out of the line | Cable in and out of the line | Cable in and out of the line | metering cable inbound and outbound lines | Overhead incoming cable outlet |
Isolation/load/combination appliances | FZRN21-12 | FZRN21-12D | FZRN21-12D | FZRN21-12D | GN□-12D | |
Fuse | RN2 | S□LAJ | S□LAJ | S□LAJ | RN2 | RN3 |
Current transformer | LZZBJ9 | LZZBJ9 | LZZBJ9 | LZZBJ9 | ||
Voltage transformer | JDZ | JDZ | ||||
Scheme number | 19 | 20 | 21 | 22 | 23 | 24 |
Main circuit scheme diagram | ![]() | |||||
use | Overhead incoming cable outlet | Overhead incoming cable outlet | Overhead incoming cable outlet | Overhead incoming cable outlet | Overhead incoming cable outlet | Overhead incoming cable outlet |
Isolation/load/combination appliances | FZRN21-12D | FZRN21-12D | FZRN21-12D | FZRN21-12D | FZRN21-12D | FZRN21-12D |
Fuse | S□LAJ | S□LAJ | S□LAJ | S□LAJ | ||
Current transformer | LZZBJ9 | LZZBJ9 | LZZBJ9 | LZZBJ9 | ||
Voltage transformer | ||||||
Scheme number | 25 | 26 | 27 | 28 | 29 | 30 |
Main circuit scheme diagram | ![]() | |||||
use | contact | contact | Measurement and liaison | Measurement and liaison | Overhead line contact | Overhead line contact |
Isolation/load/combination appliances | FZRN21-12 | FZRN21-12D | FZRN21-12D | FZRN21-12 | ||
Fuse | S□LAJ | RN2 | RN2 | S□LAJ | ||
Current transformer | LZZBJ9 | LZZBJ9 | ||||
Voltage transformer | JDZ | JDZ | ||||
8. Shape and installation size
1. The overall size of the ring network cabinet
![]() | ![]() | Cabinet width direction |
| Description: The height can be selected | cabinet depth direction |
2. Installation size of ring network cabinet
![]() |
| Note: The channel steel should be reliably grounded |
