We will present the performance, safe operation methods, and technical parameters of XGN2-12 ប្ដូរ កម្រិត ពណ៌ មធ្យម
Scope of application
ប្រភេទ ប្រអប់ ច្រក XGN- ច្រក- 12 ដែល បាន បិទ មេតា រចនា (បាន បញ្ជាក់ ថា បណ្ដាញ រង្វង់) គឺ សមរម្យ សម្រាប់ AC 50 Hz, 10 KV បណ្ដាញ ជា ផ្ទុក ការ សម្រាក និង សៀវភៅ ខ្លី និង បិទ បច្ចុប្បន្ន សៀវភៅ ខ្លី ប៊ូតុង បណ្ដាញ រៀន នេះ ត្រូវ បាន ផ្គុំ ជាមួយ វិធីសាស្ត្រ ផ្នែក ដៃ និង អ៊ីនធឺណិត ដើម្បី ប្រតិបត្តិ ការ ប្ដូរ ផ្ទុក ។ និង ប្ដូរ មូលដ្ឋាន និង ការ ផ្លាស់ប្ដូរ បំផុត ត្រូវ បាន ផ្ទាល់ ជាមួយ ប្រតិបត្តិការ ដោយ ដៃ ។ ប៊ូតុង បណ្ដាញ នេះ មាន ការ ប្រតិបត្តិការ ពេញលេញ កម្រិត ពេញលេញ ទំហំ តូច គ្មាន ភ្លើង និង ការ បង្កើន និង មាន អនុគមន៍ "ការពារ ៥" ដែល អាច ទុកចិត្ត ។
Use environmental conditions
The upper limit of ambient temperature is 40°C, and the lower limit is -25°°C;
The altitude does not exceed 1000m;
មធ្យោបាយ មធ្យម នៃ ភាព ទំនាក់ទំនង ទំនាក់ទំនង មិន ធំ ជាង 95% និង មធ្យម ខែ មិន ធំ ជាង 90% ឡើយ ។ មធ្យោបាយ មធ្យោបាយ ទឹក មិន ធំ ជាង 2.2x10- 3 Mpa ។ និង មធ្យោបាយ ខែ មិន ធំ ជាង 1.8 × 10- 3 Mpa ឡើយ ។
The surrounding air is not corroded or obviously polluted by combustible gases and water vapors;
No regular violent vibrations.
Model and meaning
XGN□-□-□-□/□-□
└──Rated Thermal Stable Current (គ.)
└──តម្លៃ បច្ចុប្បន្ន (A)
└──Operation method (J spring operation D electromagnetic operation.)
└── One plan number
└──កម្រិត ពិត
└──Design serial number
└──Indoors
└──Fixed
└──Box type
Use environmental conditions
◆Upper limit of ambient temperature 40°C lower limit -25°C (indoor):
◆Allocation 1000m;
( នៅ ពេល កម្ពស់ ទឹក លើក មធ្យោបាយ វា នឹង ត្រូវ បាន អនុវត្ត ដោយ យោង តាម ការ កំណត់ ទាក់ទង នៃ DUT593-1996 "ណែនាំ ទូទៅ សម្រាប់ លំដាប់ ចែករំលែក នៃ ស្វង់ កម្រិត ខ្ពស់ tchgear");
◆The daily average of relative humidity is not greater than 95%, and the monthly average is not greater than 90%:
the intensity of ground tremors does not exceed 8 degrees;
◆ No fire, explosion hazard, serious pollution, chemical corrosion and violent perturbation place.
The main technical parameters of the ប្ដូរ ទេ
serial number | project | unit | data |
1 | កម្រិត ពិត | គ. | 3、6、10 |
2 | Maximum operating voltage | គ. | 3.5、8.9、11.5 |
3 | តម្លៃ បច្ចុប្បន្ន | A | May-00 |
4 | Rated breaking current | គ. | 16.20、31.5、40 |
5 | Rated Short Circuit Engagement (Rated Short Circuit Off Current) | គ. | 40、50、80.100 |
6 | Rated short-circuit thermal stabilization current | គ. | 16.20、31.5、40 |
7 | Rated for thermally stable current | គ. | 40、50、80、100 |
8 | Rated thermal settling time | s | 4 |
9 | កម្រិត ការពារ | IP | IP2X |
10 | Busbar system | - | Single busbar, next to the single busbar |
11 | How it works | - | Electromagnetic type, spring energy storage type |
12 | Dimensions (width, × depth, × height). | មmm | 1100×1200×2650 (below 1000A). |
13 | weight | kg | 1000 |
Structure and anti-error device
structure
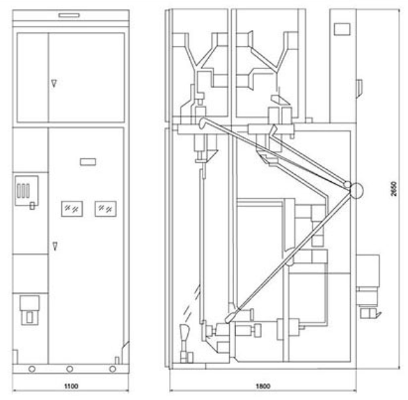
ប៊ីបេត គឺ ជា រចនាសម្ព័ន្ធ រចនាប័ទ្ម ដែល មាន រចនាប័ទ្ម គីឡូបៃ កាបែរ ត្រូវ បាន ស្មើ ដោយ មុំ កណ្ដាល ។ ហើយ ប៊ីបេត ត្រូវ បាន ចែក ទៅ ក្នុង ចន្លោះ កណ្ដាល, ចន្លោះ បារស, ចន្លោះ ជុំ និង ចន្លោះ ផ្លូវ ។ និង ប្រតិបត្តិការ នៃ សមាសភាគ មេ ក្នុង ប៊ីបែល អាច ត្រូវ បាន មើល តាម បង្អួច ការ មើល និង ការ ពន្លឺ លើ ហ្វ្រូដ ។ ដើម្បី បង្កើន ការ ប្រតិបត្តិការ បច្ចេកទេស នៃ ការ ប្ដូរ សមាសភាគ ចម្បង ( ដូចជា បំបែក សៀគ្រ ប្ដូរ ផ្ដាច់ បង្វិល ។ ។) បាន ដោះស្រាយ ឡើង វិញ ។
យោង តាម ប្លង់ របស់ ប៊ីបែែរ ត្រូវ បាន ដំឡើង ចែក ជាមួយ ចលនា ។ ច្រក អាច ត្រូវ បាន ផ្ទាល់ ជាមួយ ការ បញ្ចប់ សញ្ញា, ឧបករណ៍ ចង្អុល ពន្លឺ សញ្ញា, ការ ដំឡើង ប្ដូរ ផ្ទេរ និង ជុំ ប្រតិបត្តិការ , ខាង ក្រោយ គឺ ជា ជុំ របារ បាស ផ្នែក ខាង ក្រោម គឺ ជា ចន្លោះ ខ្លាំង អ្នក ប្រើ អាច មាន ថ្នាក់ ងាយស្រួល ។ ផ្នែក ខាងមុខ គឺ ជា ជុំ បំបែក ដែល បង្កើត ការ ថែទាំ របស់ ការ ប្ដូរ ។ វិធីសាស្ត្រ ខាង ក្នុង របស់ ប៊ូតុង ត្រូវ បាន បង្ហាញ នៅ ក្នុង រូបតំណាង ១, រូបតំណាង ២ និង ដៃ ផលិត ។
Error prevention device
អនុគមន៍ "ការពារ ៥" គឺ ៖ ដើម្បី ការពារ ការ តភ្ជាប់ មិន ត្រឹមត្រូវ និង ការ តភ្ជាប់ មិន ត្រឹមត្រូវ របស់ រង្វង់ ។ ការពារ ការ បិទ មិន ត្រឹមត្រូវ និង ការ បិទ មិន ត្រឹមត្រូវ របស់ ការ តភ្ជាប់ ជាមួយ ផ្ទុក ។ ការពារ ការ បិទ និង ប្ដូរ មូលដ្ឋាន ។ ការពារ ការ ផ្ដល់ ថាមពល ពី ត្រូវ បាន បើក នៅ ពេល ផែនដី ត្រូវ បាន បើក និង បិទ ។ ការពារ ភាព មិន ត្រឹមត្រូវ ទៅ ក្នុង ចន្លោះ ជីវិត ។
ប្ដូរ នេះ ចាប់ផ្តើម វិធីសាស្ត្រ ចាក់សោ រូបភាព ថាស បន្ទះ ចាក់សោ ប្លុក ដោះស្រាយ និង ដៃ តភ្ជាប់ ដែល មាន លក្ខណៈ សម្បត្តិការ ដែល អាច ទុកចិត្ត មុខងារ ពេញលេញ រចនាសម្ព័ន្ធ ធម្មតា និង ប្រតិបត្តិការ ងាយស្រួល ដើម្បី ធ្វើ ឲ្យ " ការពារ five" simply and effectively:
(1) Control switches (KW switches) with red and green plates are used in circuit breaker schemes to prevent misdisconnection and misclosing of circuit breakers;
(២) តែ បន្ទាប់ ពី ការ បំបែក សៀវភៅ ត្រូវ បាន ផ្ដាច់ ពិត ។ ដោះស្រាយ តូច អាច ត្រូវ បាន ដក ចេញ ពី ទីតាំង "ការងារ" ហើយ ត្រូវ បាន ដក ទៅ ខាង ស្ដាំ ទៅ ទីតាំង " ការ ចាក់សោ តភ្ជាប់" ។ បំបែក និង បិទ ប្ដូរ បំបែក ដោយ ផ្លាស់ប្ដូរ ។ ភាព ទុកចិត្ត នៃ ការ ដោះស្រាយ និង ការ ចាក់សោ មាន មុខងារ ការពារ កំហុស ពីរ ដែល ជា , នៅ ពេល ដោះស្រាយ តូច នៅ ក្នុង ទីតាំង "ផ្ដាច់ និង ចាក់សោ" វា អាច បិទ ប៉ុណ្ណោះ និង ចែក ការ ប្ដូរ ដោយ ផ្លូវ ខាង លើ និង ក្រោម ។ ហើយ មិនអាច បិទ កម្មវិធី បំបែក សៀវភៅ ដោយ ជៀសវាង ការ បិទ មិន ត្រឹមត្រូវ របស់ កម្មវិធី បំបែក រង្វង់ ។
(៣) នៅពេល ដែល កម្មវិធី បំបាត់ បណ្ដាញ និង ប្ដូរ ការ ផ្លូវ ខាង លើ និង ខាង ក្រោម គឺ នៅ ក្នុង ស្ថានភាព ដែល បាន បិទ និង ដោះស្រាយ តូច នៅ ក្នុង ទីតាំង "ការង" ៖ ផ្នែក ខាងមុខ និង ខាង ក្រោយ មិន អាច ត្រូវ បាន បើក ដើម្បី ការពារ ដោយ មិន ត្រឹមត្រូវ បញ្ចូល ចន្លោះពេល ជីវិត ។
(៤) ពេល បើក ការ ប្ដូរ លើ និង ខាង ក្រោម ដែល ត្រូវ បាន បើក ប្ដូរ បណ្ដាញ មិន អាច បិទ ទេ ។ និង ដោះស្រាយ តូច មិន អាច ត្រូវ បាន ដក ចេញ ពី ទីតាំង "break-lock" ទៅកាន់ ទីតាំង "ថែទាំ" ។ ដែល អាច ការពារ ជីវិត ពី ការ ដោះស្រាយ ឥត ខ្ចប់ ។
(៥) ប្រសិន បើ មិន ត្រូវ បាន បើក ប្ដូរ បណ្ដាញ ទេ ការ ប្ដូរ លើ និង ខាង ក្រោម មិន អាច ត្រូវ បាន បិទ ។ ដែល អាច ការពារ ប្ដូរ តភ្ជាប់ ដែល មាន ថ្នាក់ បិទ ។
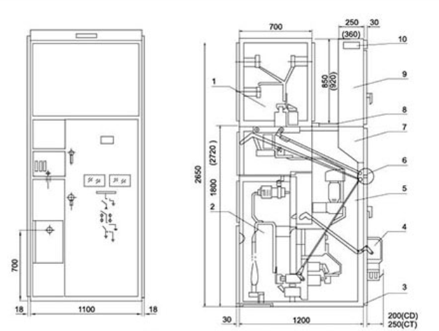
XGN□ - 12/07D outline (Fig. 1)

1. Busbar room 2. Cable room 3. Grounding bus 4. Electromagnetic (spring) mechanism 5. New circuit device room
6. Manual operation and joint sales mechanism 7. Operation chamber 8. Pressure release channel 9. Instrument room 10. Small bus terminal
XGN-12 (bypass cable outlet) outline (Fig. 2)

Dimensions installation drawing


