We will present the performance, safe operation methods, and technical parameters of KYN61--4.5. Comment
Model and meaning
K Y N 61 - 40.5 / □ - □
└─Rated Breaking Short Circuit Current (គ.)
└───តម្លៃ បច្ចុប្បន្ន (A)
└─────── Rated Voltage (គ.)
└────────── design serial number
└ ───────────── indoors
└────────────── Removal type
└─────────────── Metal armor
Use environmental conditions
The upper limit of ambient temperature is 40°C, and the average measured value within 24 hours does not exceed 35°C.
Lower limit -15°C:
Altitude: no more than 1000 meters above sea level;
Relative humidity: daily average not more than 95%, monthly average not more than 90%;
Earthquake intensity: no more than 8 degrees;
Water vapor pressure: the daily average does not exceed 2.2kPa, and the monthly average does not exceed 90%.
Technical parameters
Main technical parameters of vacuum ប្ដូរ ទេ
serial number | project | Dimensions | parameter |
1 | កម្រិត ពិត | គ. | 40.5 |
2 | Lianchang | A | 12501600 2000 |
3 | ប្រេកង់ ដែល បាន វាយតម្ម | Hz | 50 |
4 | បាន វាយតម្លៃ សម្រាប់ កំណត់ ពេល ខ្លី ផ្អាក បច្ចុប្បន្ន | គ. | 20 25 31.5 |
5 | ពន្លឺ ដែល បាន វាយតម្លៃ ផ្អាក បច្ចុប្បន្ន | គ. | 50 63 80 |
6 | rated power frequency withstand voltage | គ. | 95/1 min |
7 | ពន្លឺ ពន្លឺ ដែល បាន អត្រាតរ | គ. | 185 |
8 | Rated short circuit duration | S | 4 |
9 | កម្រិត ការពារ | IP3X |
Main technical parameters of vacuum circuit breaker
serial number | project | Weaving position | parameter |
1 | កម្រិត ពិត | គ. | 40.5 |
2 | ប្រេកង់ ដែល បាន វាយតម្ម | Hz | 50 |
3 | rated power frequency withstand voltage | គ. | 95/lmin |
4 | ពន្លឺ ពន្លឺ ដែល បាន អត្រាតរ | គ. | 185 |
5 | តម្លៃ បច្ចុប្បន្ន | A | 12501600 2000 |
6 | បាន វាយតម្លៃ សម្រាប់ កំណត់ ពេល ខ្លី ផ្អាក បច្ចុប្បន្ន | គ. | 20 25 31.5 |
7 | Rated short-circuit breaking current | KA | 20 25 31.5 |
8 | ពន្លឺ ដែល បាន វាយតម្លៃ ផ្អាក បច្ចុប្បន្ន | គ. | 50 63 80 |
9 | Rated short circuit duration | ms | 4 |
10 | Opening time | ms | 30 S 1 W 60 |
11 | Hehe time | ms | 50 & t W 】00 |
12 | 88 The number of ពេលវេលា the current is interrupted in a fixed short circuit | ពេលវេលា | 20 |
13 | Mechanical life | ពេលវេលា | 10000 |
The main technical parameters of spring operation machinery
ឈ្មោះ: | unit | numeric value | |
កម្រិត ពណ៌ ប្រតិបត្តិការ ដែល បាន អត្រា | Split coil | V | DC220/110 AC220/110 |
Closing coils | |||
Rated operating current | Split coil | A | O.96(22OV)1.O5I11OV) |
Closing coils | |||
Energy storage motor power | W | 230 | |
Energy storage motor rated voltage | V | DC220/110 AC220/110 | |
Energy storage time | S | w 12 |
Structural characteristics of ប្ដូរ ទេ
ស្លាប់ ទាំងមូល មាន ជាមួយ ផ្នែក ពីរ ៖ ប៊ូតុង និង ផ្នែក ដែល អាច ចេញ បាន ។ រចនា សម្ព័ន្ធ កាបែរ ត្រូវ បាន ដាក់ ជាមុន និង បញ្ចូល គ្នា ។ ផ្នែក ខាង ក្នុង នៃ ប្ដូរ ត្រូវ បាន ចែក ទៅ ក្នុង ចន្លោះ ការ បំបែក សៀគ្រ ចន្លោះ ខ្លាំង និង ចន្លោះ ឧបករណ៍ ដែល មាន ចែកចាយ មេតា ។ កម្រិត ការពារ នៃ កណ្ដាល ទៅ កាន់ IP3X កម្រិត ការពារ រវាង កម្រិត ពណ៌ នីមួយៗ គឺ IP2X និង ផ្នែក រចនា សម្ព័ន្ធ មេតា ទាំងអស់ ត្រូវ បាន ដាក់ មូលដ្ឋាន ដោយ ទុកចិត្ត និង កម្រិត នីមួយៗ នៃ ប្រព័ន្ធ បណ្ដាញ មេ មាន ឆានែល ចេញ ការ សម្រេច ទំនាក់ទំនង ដោយ ទំនាក់ទំនង ។
1. Enclosure and partition
សែល និង ចែកចាយ នៃ ការ ប្ដូរ ត្រូវ បាន បញ្ចូល គ្នា ជាមួយ ប្លុក រលក ខ្លួន បន្ទាប់ ពី ដំណើរការ និង បណ្ដុះ ដោយ ម៉ាស៊ីន CNC ផង ដែរName ។ ដូច្នេះ ការ ផ្លាស់ប្ដូរ ដែល បាន ផ្ញើ អាច ប្រាកដ ភាព គំរូ នៃ ទម្រង់ រចនាសម្ព័ន្ធ ។ ការ ប្ដូរ ត្រូវ បាន ចែក ទៅ ក្នុង ចន្លោះ ការ បំបែក សៀគ្រ ចន្លោះ ថ្នាក់ និង ចន្លោះ ឧបករណ៍ ផ្ទុក និង ផ្នែក នីមួយៗ ត្រូវ បាន បំបែក ដោយ បំបែក មេតា ។
2. Handcart
កាត ដៃ អាច ត្រូវ បាន ចែក ទៅ ជា កាត ដៃ បណ្ដាញ សៀវភៅ កម្រិត កម្រិត ដៃ មធ្យោបាយ, កាត ដៃ មធ្យម, កាត ដៃ ដុំ បំបែក ល ។ ។ យោង តាម គោល បំណង
កាត ដៃ មាន ទីតាំង សាកល្បង / បំណង និង ទីតាំង ធ្វើការ នៅ ក្នុង កាបៃ និង ទីតាំង នីមួយៗ ត្រូវ បាន ផ្ទាល់ ជាមួយ ឧបករណ៍ ខ្សែ គ្នា ដើម្បី ប្រាកដ ថា កាត ដៃ មិន អាច ត្រូវ បាន ផ្លាស់ទី ដោយ ទំនាក់ទំនង នៅ ពេល វា នៅ ខាង ទីតាំង ពីរ ។
3. Circuit breaker compartment
បទ ជាក់លាក់ ត្រូវ បាន ដំឡើង ខាង ក្នុង កម្រិត សៀគ្វី សម្រាប់ កាត ដៃ ត្រូវ ផ្លាស់ទី ។ នៅពេល ដែល អ្នក បំបាត់ រង្វង់ ផ្លាស់ទី រវាង ទីតាំង ការងារ នៃ ទីតាំង សាកល្បង ប្លង់ ត្រូវ បាន បើក ឬ បិទ ដោយ ស្វ័យ ប្រវត្តិ ដែល ប្រាកដ ថា ភ្ញៀវ មិន មែនទេ
ចំណុច តួ ដែល បាន បញ្ចូល ។ កាត ដៃ អាច ត្រូវ បាន ប្រតិបត្តិ ដោយ បិទ ច្រក និង កាត ដៃ អាច ឃើញ នៅ ក្នុង កាបៃ តាម បង្អួច មើល ។ ដូចជា សញ្ញា មុខងារ ណាមួយ នៅ លើ កាត ដៃ ។
4. Busbar chamber
ខ្សែ មេ នាំចេញ ពី ប្ដូរ មួយ ទៅ ផ្សេង ទៀត តាម រយៈ របារ ខ្សែកោង និង ប្រអប់ ទំនាក់ទំនង មូលដ្ឋាន ។ ដែល ត្រូវ បាន ជួសជុល ជាមួយ រង្វង់ របារ ខ្សែ នៅ ពេល កាត់ បន្ទះ ចំហៀង របស់ ប៊ីបែប ចូល គ្នា ។ របារ ខ្សែកោង ទាំងអស់ ត្រូវ បាន អនុញ្ញាត ដោយ សញ្ញា សម្ងាត់ ។
5. Cable compartment
PT, ground switch, surge arrester and multiple cables can be installed in the cable room.
6. Relay room
ក្រឡាចត្រង្គ និង បន្ទះ អាច ត្រូវ បាន ដំឡើង ជាមួយ សមាសភាគ ទីពីរ ដូចជា វត្ថុ បញ្ជា ធាតុ ការពារម៉ោង ឧបករណ៍ បង្ហាញ ។ កម្មវិធី បង្ហាញ ត្រួត ពិនិត្យ ឡើង វិញ ។ ល ។
7. Interlock device
The ប្ដូរ ទេ has a reliable interlock device to ensure the safety of operators and equipment:
![]() | ![]() | ![]() |
| Promote interlocking installation | KYN61-40.5(Z) Armored Handcart Cabinet | Grounding switch |
នៅ ពេល ប្ដូរ កណ្ដាល នៅ ក្នុង ទីតាំង ការ បើក កាត ដៃ អាច ត្រូវ បាន ផ្លាស់ទី ពី ទីតាំង សាកល្បង/ បំណង ទៅ ទីតាំង ធ្វើការ ៖ ហើយ ខាង ក្រោយ មិន អាច ត្រូវ បាន បើក ដែល មិន ចង់ ឲ្យ បញ្ចូល ចន្លោះពេល ដែល មិន ត្រឹមត្រូវ ។
នៅ ពេល កាត ដៃ ត្រូវ បាន ដោះស្រាយ ចេញ ពី ប៊ូតុង ឬ ពេល កាត ដៃ ត្រូវ បាន កណ្ដាល នៅ ក្នុង ទីតាំង សាកល្បង/ បំណង ក្នុង កាបរ បើក ការ ចាក់សោ និង ដោះសោ ប្ដូរ កណ្ដាល អាច ត្រូវ បាន បិទ នៅ ពេល កាត ដៃ នៅ ក្នុង ទីតាំង ធ្វើការ ប្ដូរ បណ្ដាញ មិន អាច បិទ ទេ ។ វា ការពារ ការ តភ្ជាប់ មិន ត្រឹមត្រូវ នៃ ការ ប្ដូរ បណ្ដាញ និង ការពារ កាត ដៃ ច្រើន ពី ផ្លាស់ទី ទៅ ទីតាំង ធ្វើការ នៅ ពេល Groe ការ ប្ដូរ នៅ ក្នុង ទីតាំង ដែល បាន បិទ ។
រង្វង់ រង្វង់ រង្វង់ អាច ប្រតិបត្តិ តែ កម្មវិធី បំបែក សៀវភៅ នៅពេល វា នៅ ក្នុង ទីតាំង សាកល្បង/ចេញ ឬ ទីតាំង ធ្វើការ ៖ ហើយ បន្ទាប់ ពី ការ ឈប់ សៀវភៅ ត្រូវ បាន ឈ្មោះ កាត ដៃ មិន អាច ផ្លាស់ទី ទេ ។ ដែល ការពារ ការ ផ្ទុក ជីវិត ពី ការ ចុច និង គូរ សៀវភៅ កម្រិត ។ ចំណុចប្រទាក់ អចិន្ត្រៃយ៍ អាច ត្រូវ បាន ដំឡើង រវាង ប៊ូតុង នីមួយៗ ។
Grounding device
In the cable room, there is a separate 6x50mm2 grounding busbar, which can run through the adjacent cabinets and have good contact with the cabinets.
Main wiring scheme
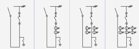
មាន គ្រោងការណ៍ ធម្មតា ២៧ ធម្មតា ដែល បាន ប្រើ សម្រាប់ គ្រោងការណ៍ ថ្នាក់ ដំបូង នៃ ប្ដូរ ។ ដែល អាច ធ្វើ ឲ្យ អ្នក ប្រើ ចាំបាច់ សម្រាប់ បន្ទាត់ បញ្ចូល ខ្លាំង និង បន្ទាត់ ចេញ ធាតុ លើ កណ្ដាល និង បន្ទាត់ ចេញ ទំនាក់ទំនង និង វាស់ ការពារ ។ ល ។
Scheme number | 01 | 02 | 03 | 04 | |
Main wiring diagram | ![]() | ||||
Main electrical equipment | តម្លៃ បច្ចុប្បន្ន | 125,016,002,000 | |||
New circuit driver ZN85-40.5 | 1 | 1 | 1 | 1 | |
Current transformer LDBJ8(9)-35 | 2 | ||||
Grounding switch IN22-40.5/31.5 | 1 | 1 | 1 | 1 | |
use | Overhead out | Overhead out | Overhead out | Overhead out | |
Scheme number | 05 | 06 | 07 | 08 | |
Main wiring diagram | ![]() | ||||
Main electrical equipment | តម្លៃ បច្ចុប្បន្ន | 125,016,002,000 | |||
New circuit driver ZN85-40.5 | 1 | 1 | 1 | 1 | |
Current transformer LDBJ8(9)-35 | 2 | 3 | |||
Grounding switch IN22-40.5/31.5 | 1 | 1 | 1 | 1 | |
use | cable outlet | cable outlet | cable outlet | cable outlet | |
Scheme number | 09 | 10 | 11 | 12 | |
Main wiring diagram | ![]() | ||||
Main electrical equipment | តម្លៃ បច្ចុប្បន្ន | 125,016,002,000 | |||
New circuit driver ZN85-40.5 | 1 | 1 | 1 | 1 | |
Current transformer LDBJ8(9)-35 | 1 | 2 | 3 | ||
use | Left (right) contact | Left (right) contact | Left (right) contact | Left (right) contact | |
Scheme number | 13 | 14 | 15 | 16 | |
Main wiring diagram | ![]() | ||||
Main electrical equipment | តម្លៃ បច្ចុប្បន្ន | 125,016,002,000 | |||
New circuit driver ZN85-40.5 | |||||
Current transformer LDBJ8(9)-35 | 1 | 2 | 3 | ||
use | contact | contact | contact | contact | |
Scheme number | 17 | 18 | 19 | 20 | |
Main wiring diagram | ![]() | ||||
Main electrical equipment | តម្លៃ បច្ចុប្បន្ន | 125,016,002,000 | |||
New circuit driver ZN85-40.5 | 1 | 1 | 1 | 1 | |
Current transformer LDBJ8(9)-35 | 1 | 2 | 3 | ||
use | Cable in | Cable in | Cable in | Cable in | |
Scheme number | 21 | 22 | 23 | 24 | |
Main wiring diagram | ![]() | ||||
Main electrical equipment | តម្លៃ បច្ចុប្បន្ន | 125,016,002,000 | |||
New circuit driver ZN85-40.5 | 1 | 1 | 1 | 1 | |
Current transformer LDBJ8(9)-35 | 1 | 2 | 3 | ||
use | Overhead in | Overhead in | Overhead in | Overhead in | |
Scheme number | 25 | 26 | 27 | 28 | |
Main wiring diagram | ![]() | ||||
Main electrical equipment | តម្លៃ បច្ចុប្បន្ន | 125,016,002,000 | |||
Voltage transformer LDX9-35 | |||||
Fuse XPNP-35 | 2 | 3 | 2 | ||
Surge arrester YH5WS-51/134Q | 3 | ||||
| កម្មវិធី បម្លែងComment SCB9-50-35/0.4 | 1 | ||||
use | Voltage transformer | Voltage transformer | Station usage changed | ||
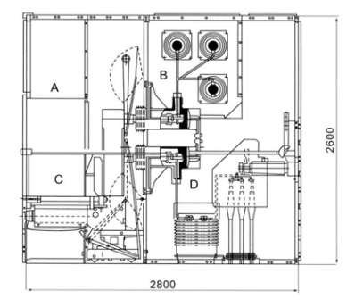
Dimensions and schematic diagram of ប្ដូរ ទេ structure
![]() | ![]() |
| Dimensions (WxDxH): 1400x2800x2600 | Schematic diagram of the structure of the ប្ដូរ ទេ A relay instrument room B bus room C circuit breaker room D cable |
Switch cabinet installation
1. Height of electrical room: ≥4500mm:
2. Distance from the back of the cabinet to the wall: ≥1500mm;
3. Flatness of foundation frame: ≤1mm/m?;
4. The part of the foundation embedded channel steel above the ground shall not exceed 3mm;
5. It can be fixed on the foundation by bolting or welding:
6. The weight of the ប្ដូរ ទេ is about 1800Kg:
7. Width of the ប្ដូរ ទេ operation corridor (single row): ≥3000mm, double row (face to face) ≥ 4000mm.
បង្ហាញ consistency
the main scheme number of the secondary line, the single bus system diagram, the arrangement diagram and the layout diagram;
Secondary circuit electrical schematic diagram and terminal arrangement diagram:
the model, specification and quantity of electrical components of the ប្ដូរ ទេ;
Specifications and materials of main busbars and branch busbars:
Name and quantity of spare parts and spare parts:
Special requirements are agreed with the manufacturer.
ដោយ សារ ប្រសើរ ប្រសើរ ថ្នាក់ នៃ បច្ចេកទេស ឯកសារ ទិន្នន័យ ទាំងអស់ គួរ ត្រូវ បាន អះអាង ដោយ ចំណុច បច្ចេកទេស ចុង ក្រោយ នៃ គ្រោងការណ៍ ។ ហើយ នឹង មាន ការ ផ្លាស់ប្ដូរ ដោយ គ្មាន ការ ជូនដំណឹង មុន ។
Ordering instructions
The user should provide the following technical information when ordering:
ដ្យាក្រាម គ្រោងការណ៍ ថ្នាក់ មេ, គោលដៅ និង ដ្យាក្រាម ប្រព័ន្ធ រ៉ូម តែ មួយ ៖ ការ វាយតម្លៃ ៖ ការ វាយ តម្លៃ បច្ចុប្បន្ន ៖ បាន វាយ តម្លៃ បណ្ដាញ ខ្លី ៖ ដ្យាក្រាម ប្លង់ ចែកចាយ និង ការ រៀបចំ ប្ដូរ និង ដ្យាក្រាម កំណត់ រចនា សម្ព័ន្ធ ។ ល ។
Indicate the specifications of the inlet and outlet cables.
Requirements for control, measurement and protection functions of ប្ដូរ ទេ and other requirements for latching and automatic devices.
ម៉ូដែល បញ្ជាក់ និង សមាសភាគ នៃ សមាសភាគ អ៊ីមែល មេ ក្នុង ការ ប្ដូរ ។ ដូចជា ប្ដូរ រវាង ! ឬ ប៊ូតុង ចូល ត្រូវ ការ តភ្ជាប់ ដោយ ប្រៀប របារ បារស និង ការ ទាមទារ ជាក់លាក់ ដូចជា ភារកិច្ច ដែល បាន វាយតម្លៃ នៃ របារ ផ្សែរ និង ទំហំ របស់ ស៊ីស ពី កម្ពស់ មូលដ្ឋាន គួរ ផ្ដល់ ។ d.
When ប្ដូរ ទេ is used in special environments, it should be detailed at the time of ordering.
Other special requirements.
Schematic diagram of the installation of ប្ដូរ ទេ

